Новости охоты, рыбалки. Реклама 
Птицы
Природа утром
Шкаф охотника. Сейф
Удобный шкаф для охотника. Описание, рисунок. Можно изготовить из металла (сейф).
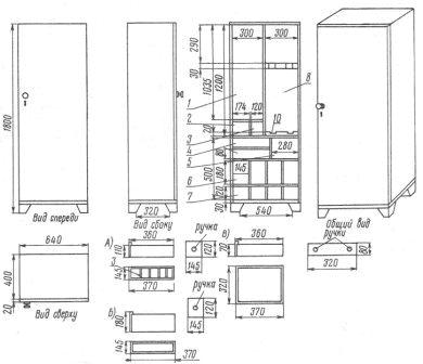
   Многие охотники хранят оружие, патроны и принадлежности для чистки ружья в самых различных местах. Это весьма неудобно, особенно когда собираются на охоту,- долго приходится искать нужную вещь. Так было и у меня. Наконец, возникла мысль о создании удобного, вместительного шкафа.
Шкаф я изготовил из деревянных реек и трехслойной фанеры, заднюю стенку сделал из более толстой фанеры. Шкаф имеет три секции: две вертикальные и одну горизонтальную, нижнюю часть. Правая верхняя секция, предназначенная для хранения ружей, рассчитана на два ружья. Если у охотника одно ружье, то шкаф все равно изготовляют, не изменяя его внешних размеров: просто правую секцию делают уже, а левую - шире.
   В секции для хранения ружей имеются гнезда-упоры для затыльников прикладов, а в средней части - гнезда для стволов, как у ружейных пирамид. Левая секция предназначена для хранения охотничьего снаряжения (рюкзака, патронташа, футляра или чехла для ружья и т. п.). В нижней части ее есть два отделения. Большее отделение предназначено для хранения принадлежностей, масла, щелочи и т. д., а меньшее - для хранения охотничьей документации (ружейные паспорта, памятки, правила охоты,   карты,   схемы,   охотничий   билет).
   Третья секция по горизонтали разделена на три основания. В самом нижнем отделении расположены четыре ящичка для дроби, картечи и пуль. Эти четыре ящика разделены на отсеки и каждый отсек предназначен для хранения определенного номера дроби или определенного размера картечи. Благодаря тому, что основной груз расположен внизу шкафа, 6м становится очень устойчивым.
   В среднем отделении помещаются ящички для пороха (который хранится в банках или бутылках темного стекла), пыжей и гильз. Эти ящички несколько выше дробовых. Их тоже четыре. В верхнем отделении помещаются два ящичка для хранения готовых патронов. В этом же отделении имеется ниша для хранения капсюлей и принадлежностей для снаряжения патронов (весы, мерки, разновесы, высечки, вальцовки и т. п.).
   Дверцу и наружные боковые стенки шкафа я отшлифовал стеклянной шкуркой, окрасил морилкой и покрыл лаком. Если есть возможность, то лучше шкаф отфанеровать листами из благородных сортов дерева в соответствии с окружающей мебелью, обработать политурой и покрыть лаком.
Е.Никитин
Журнал "Охота и охотничье хозяйство", №10, 1979г.
Животные
Охота на утку
ПОИСК ПО САЙТУ:

  Главная
  Литература
  Законы
  Оружие, снаряжение
  Охотничьи собаки
  Охотничьи животные
  Охота
  Рыбалка
  Грибы
  Кулинария
  Фото, видео
  Юмор
  Контакты


                                                                                              
охотничий сейф, шкаф
Главная >> Оружие и снаряжение >> Шкаф охотника. Сейф
охотничий сейф, шкаф
сосновая ветка
Рисунок. Детали шкафа (сейфа) охотника: а - ящик для дроби, картечи и пуль (4 шт.), б - ящик для пороха, пыжей, гильз (4 шт.), в - ящик для готовых патронов (2 шт.). Целевое распределение помещений шкафа; 1 - для хранения патронташа, ягдташа и т. п., 2 - для хранения ружейного масла и принадлежностей для чистки ружей, 3 - ниша для охотничьих документов, 4 - гнезда для ящиков с готовыми патронами, 5 - ниша для хранения приборов и инструмента, используемого для снаряжения патронов, 6-7 - гнезда для хранения мешков с дробью, 8 - отсек для хранения ружей.

   Если изготовить из металла получится удобный сейф для хранения ружья, боеприпасов.

березовые ветки
                                                                                                                                                                                                                                                                                                                                                                                                                               
   Использование материалов сайта возможно при размещении активной ссылки
   ©2009 - 2025.   Охота, рыбалка, природа - Информационный портал
Рейтинг@Mail.ru
лес, природа